Đông Bắc Bích Động

thị trấn Bích Động, huyện Việt Yên, tỉnh Bắc Giang

Xem trên bản đồ

Update triệu/m²

Công ty Cổ phần Xây dựng và Dịch vụ Thương mại Tuấn Quỳnh
Đang mở bán
13/01/2026
15,35 ha
511 lô liền kề (LK) - 31 lô song lập (SL) - 4 lô biệt thự (BT)
Nhà đất

Thông tin đang được cập nhật

Đăng ký xem hồ sơ pháp lý

Thông tin đang được cập nhật

Tiện ích dự án

Hệ thống cây xanh và mặt nước

Quảng trường trung tâm, đường dạo bộ

Khu thương mại & shophouse

Đường nội bộ rộng thoáng

Bãi đậu xe & hạ tầng kỹ thuật hoàn chỉnh

Trường học gần dự án

Khu sinh hoạt cộng đồng

Chợ Bích Động & siêu thị, cửa hàng dịch vụ — trong bán kính ~1 km

Bệnh viện Đa khoa Việt Yên — ~1,5 km, thuận tiện khám chữa bệnh

Các trường học công lập — THPT and THCS chỉ vài phút đi bộ

Giao thông kết nối nhanh — dự án cách cao tốc Hà Nội – Bắc Giang khoảng 4 km

Thông tin chi tiết

I. Tổng quan

Đông Bắc Bích Động là khu đô thị hiện đại được đầu tư bài bản bởi Công ty Cổ phần Xây dựng và Dịch vụ Thương mại Tuấn Quỳnh, nằm trong vùng phát triển năng động của thị xã Việt Yên – Bắc Giang.
Với quy mô rộng 15,35 ha, dự án cung cấp đa dạng loại hình sản phẩm gồm:

  • 511 lô liền kề (LK)
  • 31 lô song lập (SL)
  • 4 lô biệt thự (BT)
    Toàn bộ sản phẩm có hình thức sở hữu lâu dài, mang lại giá trị bền vững cho cư dân và nhà đầu tư.

II. Vị trí

Dự án tọa lạc tại khu vực phía Đông Bắc, phường Bích Đông, thị xã Việt Yên, tỉnh Bắc Giang – trung tâm phát triển đô thị, công nghiệp và hành chính mới:

  • Gần các khu công nghiệp lớn như Vân Trung, Đình Trám, Quang Châu
  • Kết nối nhanh với đường QL1A, cao tốc Hà Nội – Bắc Giang
  • Cách TP Bắc Giang khoảng 15 phút di chuyển
  • Liền kề hệ thống trường học, chợ, UBND phường và trung tâm y tế

 

III. Tiện ích

Đông Bắc Bích Động được quy hoạch đồng bộ với chuỗi tiện ích phục vụ nhu cầu sống và đầu tư:

  • Hạ tầng kỹ thuật hoàn chỉnh: điện, nước, chiếu sáng, thoát nước hiện đại
  • Hệ thống cây xanh và đường nội khu thoáng rộng
  • Khu đất dành cho trường học, nhà văn hóa, sân chơi cộng đồng
  • An ninh khu đô thị đảm bảo, môi trường sống trong lành

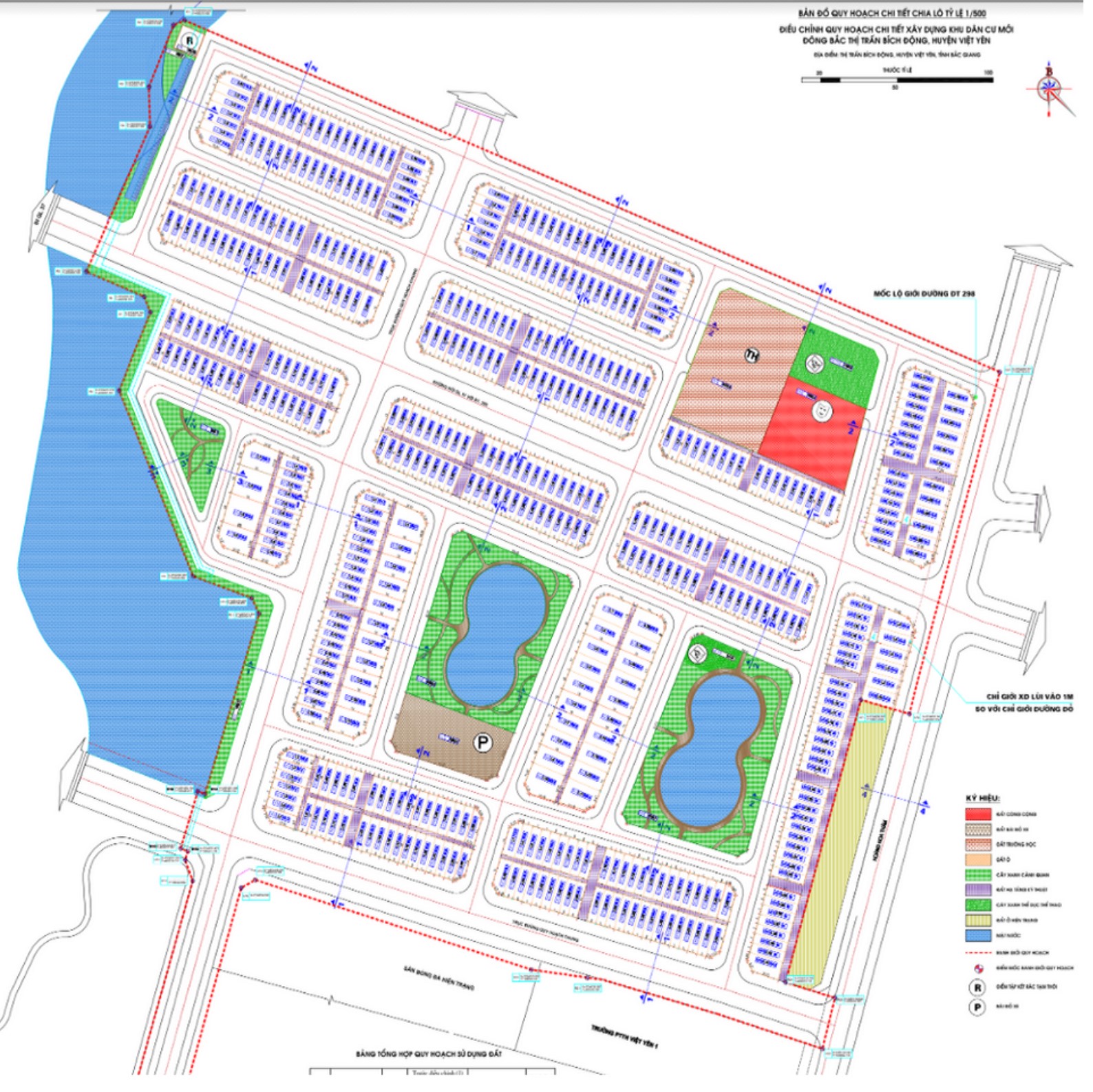
IV. Mặt bằng

  • Dự án chia thành nhiều phân khu rõ ràng, sắp xếp hợp lý giữa các loại hình nhà ở
  • Các tuyến đường nội khu có lộ giới từ 13,5m – 24m, tạo sự thông thoáng
  • Hạ tầng kỹ thuật đã hoàn thiện, sẵn sàng bàn giao

V. Căn hộ (liền kề)

  • 511 lô liền kề diện tích linh hoạt, phù hợp xây nhà ở gia đình hoặc đầu tư cho thuê
  • Pháp lý rõ ràng, được xây dựng tự do theo quy chuẩn thiết kế
  • Tận dụng được lợi thế giao thông và tiện ích xung quanh

VI. Shophouse

Mặc dù không công bố rõ số lượng shophouse, nhưng nhiều lô liền kề mặt trục chính có thể khai thác kinh doanh:

  • Nằm trên các trục đường lớn, thuận tiện mở cửa hàng, spa, siêu thị mini
  • Tiềm năng sinh lời từ nhu cầu dịch vụ cho công nhân, cư dân, khách vãng lai

 

VII. Pháp lý dự án

Chủ trương đầu tư: https://drive.google.com/drive/folders/1VPlIYaT6BMqzCWLrpVDQDsJ6awhd2HZG

Đồ án 1/500: https://drive.google.com/drive/folders/1VPlIYaT6BMqzCWLrpVDQDsJ6awhd2HZG
Chứng nhận PCCC: ( Đang cập nhập )

SXD xác nhận đủ điều kiện bán và cho thuê: ( Đang cập nhập )  

Sơ đồ mặt bằng