Ecohome Bắc Giang – Giải Pháp Nhà Ở Hiện Đại Cho Người Lao Động

Trong bối cảnh nhu cầu nhà ở xã hội tại các tỉnh thành phía Bắc ngày càng tăng cao, Dự án NOXH ECOHOME Bắc Giang nổi bật như một giải pháp toàn diện, kết hợp không gian sống chất lượng với mức giá hợp lý. Tọa lạc tại trung tâm thành phố Bắc Giang, dự án không chỉ đáp ứng nhu cầu về chỗ ở mà còn hướng đến xây dựng một cộng đồng văn minh, hiện đại và bền vững.
I. Thông Tin Tổng Quan Dự Án NOXH ECOHOME Bắc Giang
Dự án NOXH ECOHOME Bắc Giang là một trong những dự án nhà ở xã hội (NOXH) quy mô lớn nhất khu vực phía Bắc, được phát triển bởi chủ đầu tư uy tín Công ty CP Đầu tư và Xây dựng Thủ Đô (Capital House). Với tổng diện tích lên đến 12.070 m², dự án mang đến 1.273 căn hộ đa dạng diện tích, phục vụ đối tượng người lao động, hộ gia đình có thu nhập thấp tại Bắc Giang.

1. Quy Mô Dự Án
- Chủ đầu tư: Công ty CP Đầu tư và Xây dựng Thủ Đô.
- Tổng diện tích: 12.070 m²
- Số lượng sản phẩm: 1265 căn hộ
- Vốn đầu tư: 1,145 tỷ đồng
- Quy mô xây dựng: 3 tòa nhà cao 20 tầng, bao gồm 2 tòa NOXH và 1 tòa thương mại (E1, E2, NOTM)
- Số lượng căn hộ:
- Nhà ở xã hội: 1.032 căn (32,2m² – 64m²).
- Nhà ở thương mại: 233 căn (37,1m² – 70m²).
- Tiến độ: Đang trong giai đoạn xây dựng và bàn giao vào Quý 2/2026.

Dự án được thiết kế theo tiêu chuẩn xanh Ecohome, tập trung vào yếu tố bền vững với hệ thống cây xanh phủ sóng 40% diện tích, cùng công nghệ tiết kiệm năng lượng.
2. Vị Trí Chiến Lược
Tọa lạc tại lô đất B-OXH-2, khu đô thị phía Nam TP. Bắc Giang, dự án sở hữu vị trí đắc địa:

- Phía Đông Bắc: Giáp đường Phan Đình Giót.
- Phía Đông Nam: Giáp đường Bế Văn Đàn 1.
- Phía Tây Bắc: Giáp đường Tô Vĩnh Diện.
- Phía Tây Nam: Giáp đường Bế Văn Đàn.
Vị trí trung tâm giúp cư dân dễ dàng kết nối với các tiện ích quan trọng như trường học, bệnh viện, siêu thị chỉ trong bán kính 2km.
3. Chủ Đầu Tư Uy Tín
Capital House là đơn vị tiên phong trong lĩnh vực phát triển bất động sản xanh tại Việt Nam, với gần 20 năm kinh nghiệm. Một số dự án nổi bật của chủ đầu tư này bao gồm:
- Ecohome Phúc Lợi (Hà Nội).
- Ecolife Capitol (Nam Từ Liêm).
- Ecocity Premium (Hải Phòng).


II. Vị Trí Dự Án ECOHOME Bắc Giang – Kết Nối Đa Chiều, Tiện Ích Vượt Trội
Vị trí “vàng” là một trong những yếu tố giúp Dự án chung cư ECOHOME Sông Thương Bắc Giang trở thành điểm đến lý tưởng cho người lao động. Dự án nằm trong khu đô thị phía Nam đang phát triển mạnh mẽ, hứa hẹn trở thành trung tâm kinh tế – văn hóa mới của tỉnh.
1. Giao Thông Thuận Tiện
- Kết nối trực tiếp với Quốc lộ 1A qua đường Phan Đình Giót, thuận tiện di chuyển đến Hà Nội (45 phút) và các tỉnh lân cận.
- Gần các tuyến đường huyết mạch: Đường Bế Văn Đàn, Tô Vĩnh Diện.
- Cách sân bay quốc tế Nội Bài 90km.
2. Tiện Ích Xung Quanh
- Giáo dục: Trường mầm non, tiểu học, THCS Lê Quý Đôn.
- Y tế: Bệnh viện Đa khoa tỉnh Bắc Giang, Bệnh viện Y học cổ truyền.
- Mua sắm: Siêu thị VinMart, chợ trung tâm thành phố.
- Giải trí: Công viên Hoàng Hoa Thám, khu vui chơi trẻ em.
3. Cơ Cấu Sản Phẩm Đa Dạng
– Nhà Ở Xã Hội (1.032 Căn)
- Diện tích: 32,2m² – 64m² (1pn, 1pn+, 2pn)
- Đối tượng: Người lao động thu nhập thấp, hộ gia đình chính sách.
- Hình thức: Bán với giá chỉ từ 18,9 triệu/m² (ưu đãi theo quy định nhà nước).
MẶT BẰNG TẦNG ĐIỂN HÌNH TOÀ E1






MẶT BẰNG TẦNG ĐIỂN HÌNH TOÀ E2






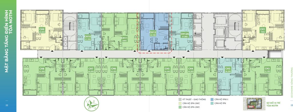
– Nhà Ở Thương Mại (233 Căn)
- Diện tích: 37-44m² 1 Phòng ngủ – 2 Phòng ngủ 60-62m2 – 70m² (3 phòng ngủ).
- Thiết kế: Hiện đại, tích hợp hệ thống smart home.
- Giá bán toà nhà thương mại Ecohome Garden : Từ 50 – 60 triệu/m², thanh toán linh hoạt qua ngân hàng.





4. Tiện Ích Nội Khu Vượt Trội – Nâng Tầm Chất Lượng Sống

– Công Viên Cây Xanh Rộng 2ha
- Khu vực đi bộ, tập yoga.
- Sân chơi trẻ em tích hợp thiết bị hiện đại.
– Trường Học Nội Khu
- Trường mầm non quốc tế đạt chuẩn.
- Thư viện cộng đồng phục vụ học tập.
– Khu Mua Sắm & Dịch Vụ
- Shophouse 2 tầng phục vụ ẩm thực, tiệm tạp hóa.
- Trung tâm thương mại mini.
– Tổng Vốn Đầu Tư & Chính Sách Bán Hàng
- Tổng vốn đầu tư: 863,1 tỷ đồng.
- Chính sách ưu đãi:
- Hỗ trợ vay vốn lãi suất 0% cho đối tượng đủ điều kiện.
- Miễn phí 2 năm quản lý vận hành.
*Chủ Đầu Tư Capital House – Cam Kết Chất Lượng
Với phương châm “Kiến tạo không gian sống xanh”, Capital House đã nhận được nhiều giải thưởng uy tín như:
- Giải thưởng Bất động sản Xanh Châu Á (2019).
- Top 10 doanh nghiệp phát triển bền vững Việt Nam.



